隨著科學技術的不斷發展,產品日趨更新,社會對質量品質的要求在不斷提升,因此企業對生產的源頭把控也日益重視。
在不同的生產領域,或多或少會接觸到熱處理的生產工藝,其中最常見的熱處理設備就是箱式電阻爐。
為了讓設備能夠持續有效的運行且保持良好的性能,箱式電阻爐的計量工作就顯得尤為重要,計量過程中遇到的一些問題也有待注意。
箱式電阻爐,顧名思義,就是類似于箱體式的加熱電爐。小到學校用于科學實驗,大到科研機構實驗室用于分析研究產品性能,
企業用來燒結陶瓷、對金屬制品進行熱處理、以及用于產品退火等。它以電為能源,在某一規定的時間內,電流通過加熱元件產生熱量,
通過傳熱、傳導和對流等方式對所控區域進行加熱。常見的有小型箱式電阻爐、程控爐、臺車箱式電阻爐、工業退火爐等等。

以一臺箱式電爐為例,長度 3m、寬度 2m、高度 2m,對其進行校準。校準時,外部不應有強烈磁場及振動,空氣
中不應有高濃度粉塵和腐蝕性氣體。
校準步驟如下:
1 外觀檢查
箱式電阻爐的外形結構應完好,銘牌內容(名稱、規格型號、使用溫度范圍、制造廠及出廠編號)應齊全,所配溫
控器的外形結構應完好,各按鍵均能正常工作。接通電源,用目測法檢查箱式電阻爐各部分的運行情況是否正常。必
要時,可以通過特定設備檢查爐內氣氛是否正常,以免在校準時,有不良氣體溢出,對人體造成傷害。
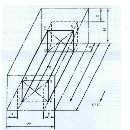
2 確定傳感器數量、布點位置和工作支架的制作情況根據 JJF 1376-2012 《箱式電阻爐校準規范》,容積≥0.15m3,
傳感器布點數量為 9 支熱電偶,使用標準器為溫度巡檢儀(配 I 級熱電偶,尺寸長度 10m,Ф2mm),
系統擴展不確定度 U=(0.7°C~1.0°C),滿足規范要求且均有各點修正值,結合爐膛尺寸確定有效測溫區,其中,有
效測溫區可以按圖示,如下:

這是校準規范中一般情況下所參考的布點方式及位置,也可以按照客戶需求或者工藝要求,選擇相應的布點
方式,并做標記,使用銅絲與支架相綁并固定。此外,里有兩個容易忽略的問題,甚至可以稱其為安全隱患。第一個,
就是支架。由于大多數箱式電阻爐的電加熱絲都裸露在外,在其加熱過程中,萬萬不能與所使用的熱電偶相接觸,
因為熱電偶外部的金屬層會與之導電,輕則損壞標準器,重則箱式電阻爐發生故障,導致安全事故。所以,如果校準
時箱式電阻爐的使用溫度較高,不建議使用鋁質 (熔點660°C)支架。另外有些鐵合金由于質地不純,遇高溫后會
軟化,導致支架癱掉,亦有安全隱患。支架的制作最好使用不銹鋼、鋼鐵合金以及陶瓷這些耐高溫材料來制作;第二
個,爐口電源。在遇到的許多臺車箱式電爐爐口或者側面,有一些電連接裝置,這個裝置用于臺車爐底面防火磚下面
的加熱,運行時會產生電流,在將傳感器從爐口引出時應與現場工程師確認,必要時,要將 9 支熱電偶尾部捆綁在一起,
從安全處引出后,再關閉爐門,從而以消除安全隱患.
3 確認連接情況
一切準備就緒后,將傳感器與記錄儀相連,對應記錄儀每通道示值與爐內所在位置,冷爐時,爐內溫度應大致
均勻,如有傳感器顯示異常,應及時查明原因。
4 對箱式電阻爐計量特性進行校準,并作數據處理根據規范要求,對箱式電阻爐的溫度均勻度、溫度穩定度、溫度偏差、
爐內最大偏差進行校準,并計算結果。